+33479880851 validex@validex.fr

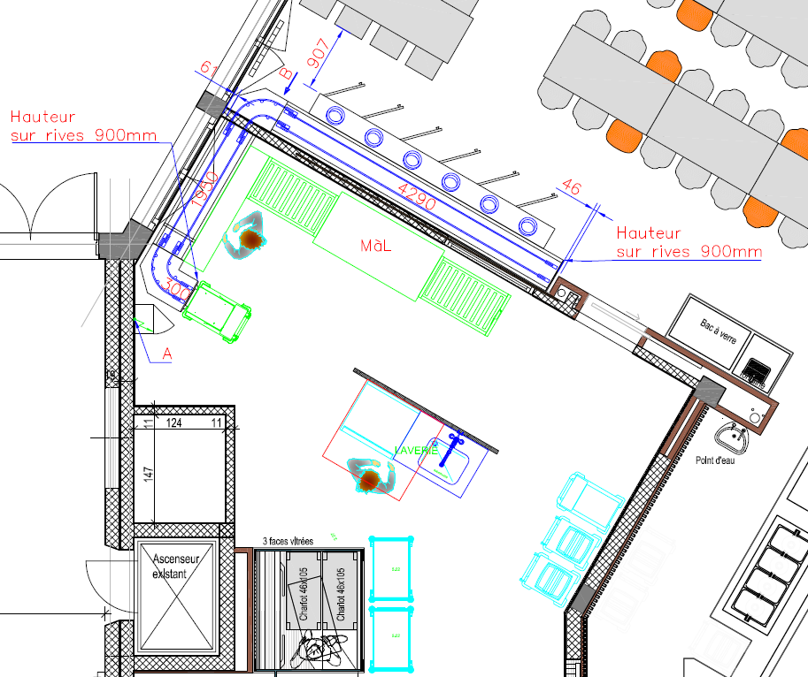
Environnement laverie VALIDEX installé par notre partenaire GINOX au Collège Saint Louis :

 

  • Un poste de tri sélectif 6 TVO de 3660mm
  • Un convoyeur à cordes composé d’un élément droit de 4 290mm, d’une courbe 90°, d’un second élément droit de 1 950mm et d’une courbe 90° avec renvoi
  • Un détecteur d’objets à balancier permettant l’arrêt du convoyeur en cas de détection d’objets restés sur un plateau
  • Un rouleau de glisse en fin de convoyeur pour transfert et stockage des plateaux sur un chariot à niveau constant
  • Un dispositif de détection permettant d’indiquer que le chariot à plateaux est plein ou absent
Plan Collège Saint Louis